烟台这里将建10栋商住楼宇
来源: 时间:2021-02-07 09:12
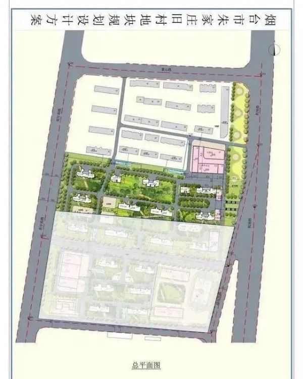
近日,烟台市自然资源和规划局核发公示《朱家庄旧村改造项目》。文件显示,总建筑面积141699平方米,其中地上100699平方米,地下设备层及车库41000平方米。

朱家庄位于芝罘区南部,地处蓁山路以南、机场路以西,向西可直达福山,向东可直通莱山,地处三区核心地带,周边生活设施配套齐全,公共资源配套完善,各类商业产业项目丰富。规划显示,该项目由1栋23层的商务办公楼、1栋27层的商住楼、1栋25层的住宅楼、5栋18层住宅楼、1栋27层的住宅楼和1栋24层的住宅楼组成。

去年9月23日,朱家庄架空改电缆入地工程《建设工程规划许可证》核发公示,公示内容显示,朱家庄架空改电缆入地工程西起规划路,向东穿过青年南路,再向南穿过朱家庄旧村、机场路,至通世路隧道西侧。建设单位为烟台市政府投资工程建设服务中心。
相关知识
烟台这里将建10栋商住楼宇
新城控股9.59亿元摘得烟台一宗商住用地
龙湖2.6亿元竞得烟台蓬莱区1宗商住地块
【烟台楼市周报】本周商品房成交量维稳,六区共成交833套
【烟台楼市周报】全市商品房成交量回稳,六区共成交769套
奥力给!烟台这项目看房就送99元小米加湿器或吹风机!
【烟台楼市周报】全市商品房成交量维稳,六区共成交728套
鹤云雅苑建筑面积是多少 苏州鹤云雅苑房屋设计好不好
楼宇“进阶”城市“上行”
AI赋能 楼宇变得更“聪明”
推荐资讯
- 1起底明园集团:李松坚与凌菲菲 5821
- 2北京房地产市场调控政策出乎意 4843
- 3华为全屋智能AWE2024前 4248
- 4价格亲民的窗帘品牌推荐,高性 4069
- 52025最新窗帘十大品牌排名 3627
- 6北京“国补”新增4类智能家居 3582
- 7为什么进户线要用铝线 3516
- 8杯子送人有何忌讳吗 男人送女 3267
- 9海南: 多孩家庭租房每月提取 2962
- 10用心服务筑就每一份美好 2954
资讯热点排名
精选专栏
