未及千秋
本方案为新中式风格,属于长期居住类型,运用了中式传统文化题材,结合现代人的审美需求去营造传统韵味,以黑白两色为主相互交错,水墨画为辅,配合蓝红黄三色点缀全屋,中式元素与现代材质的巧妙兼柔,明清家具、布艺床品相互辉映,再现了移步变景的精妙小品,使整体风格生动,具有它独特的节奏与韵律。
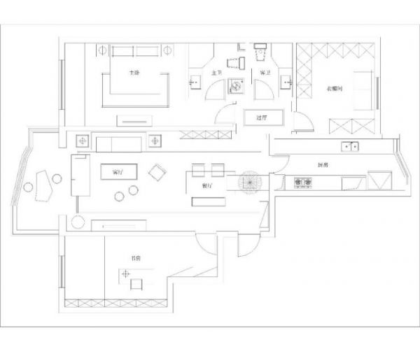
平面布局图

客餐空间
Guest dining space

客餐厅一体化,使整体空间放大,独具中式风格的沙发搭配上具有现代色彩的餐厅家具,红蓝双色相互呼应,这种设计并非完全意义上的复古明清,而是通过中式风格的特征,表达对清雅含蓄、端庄丰华的东方式精神境界的追求。

客厅具有内蕴的风格,为了舒服,新中式的环境中也常常用到沙发,颜色仍然体现着中式的古朴,新中式这样表现使整体空间,传统中透着现代,现代中揉着古典。这样就以一种东方人的‘留白’美学观念控制的节奏,显出大家风范,其墙壁上的字画无论数量还是内容都不在多,而在于它所营造的意境。可以说无论现在的西风如何劲吹,舒缓的意境始终是东方人特有的情怀,因此书法常常成就这种诗意的最好手段。这样躺在舒服的沙发上,任千年的故事顺指间流淌。

书房 空间
Study space

简单古朴的黑色书桌、文房四宝、墙上再挂两幅中式壁画,营造一种格调高雅,造型朴素优美,色彩浓厚而成熟的氛围,追求一种修身养性的生活境界。
卧室空间
Bedroom space
卧室用深色地板暖色墙面搭配上一张新中式双人床,配上几个中国蓝的抱枕,飘窗台上摆上一套茶具,正是复古带有写意,凝重不失闲适。
相关知识
未及千秋
世茂盛世雅颂 一方庭院 别致千秋
银五金六!上半年这22城卖了61万套二手房,五六月贡献超5成
杭州这条高速预计2023年建成!未来临安到建德更快更方便!
【官网】湖州德清恒大珺庭售楼处电话-24小时电话图文解析
浙A车牌专场报名通道 今天已开启,1.5万个指标
德清恒大珺庭,走进去售楼处那一刻,我承认我羡慕了!
大理经开佳园 新品发布启幕在即 不足1万元/平米买海景板房
德清恒大珺庭售楼处电话——恒大珺庭——售楼中心
德清恒大珺庭售楼处电话,地址,最新价格,图文详情解析
推荐资讯
- 1起底明园集团:李松坚与凌菲菲 5906
- 2北京房地产市场调控政策出乎意 4896
- 3华为全屋智能AWE2024前 4293
- 4价格亲民的窗帘品牌推荐,高性 4103
- 52025最新窗帘十大品牌排名 3686
- 6北京“国补”新增4类智能家居 3650
- 7为什么进户线要用铝线 3571
- 8杯子送人有何忌讳吗 男人送女 3314
- 9海南: 多孩家庭租房每月提取 3019
- 10用心服务筑就每一份美好 2991
